现代医学技术快速发展,手术中心已成为医院发展最快的部门。随着大型诊疗设备的更新换代,手术中心的设计需要能够应对更长远的变化。目前,我国还没有一套供手术中心设计的指导标准,在医院的新建、改扩建过程中会出现手术中心面积不科学或配比不合理的情况。本文总结了HKS在中美两国设计的部分综合医院,对比中美之间手术中心的普遍标准并参照平博pinnacle体育的实践经验,对手术中心的设计提出一些建议。
◆ ◆ ◆ ◆
手术室需求量的测算
◆ ◆ ◆ ◆
手术部门的规划不仅要满足医院当下的需求,并且要考虑未来的发展,手术部的大小应根据医院的等级、规模、性质等,并视自身的发展需求而定。关于手术室数量的估算,目前比较普遍地采用以下公式 :
? 方式1:医院总床位数/50(或医院总床位数的2%)
? 方式2:医院手术科室病床数/(20~25)
?方式3:B×365/(T×W×N)
(B为需要手术的总床位数;T为平均住院天数;W为手术室全年工作天数;N为手术室每日平均手术次数)
感染和急诊手术额外增加:1~2间;日间手术,可额外再增加:1~2间。

▲通过对 HKS 近年建成与在建的 500 床以上综合医院手术室的数据(包含日间手术室但不包含 DSA手术室)统计,2% 病床数的手术室间数是业主认可并且符合医院实际的数据。
一些流量比较大的省级中心医院或者专科医院,比如肿瘤医院,对手术室的数量会有更多的需求,无法简单地套用公式,建筑师应与甲方共同收集手术部门的运营资料,探讨并制定切合医院发展实际的空间编制。需要收集的数据包括:每年的手术量、高峰期手术量、手术时长与手术室的清理轮转时间、手术室利用率、现有手术间数量。

▲注 :红色为需要采集的数据,在计算时需要考虑门诊与住院患者手术两种情况,并逐一将各类手术类型相加得出手术部门手术室的数量。
◆ ◆ ◆ ◆
手术室面积建议
◆ ◆ ◆ ◆
手术室的面积主要取决于手术的类型、手术时医护人员数量,以及手术时使用设备的数量。一般来说,骨科手术室、神经外科手术室和心脏手术室因为复杂的手术设备,面积要大于其他类型的手术室。

▲国内洁净手术室规范中提及四类手术室规模的面积尺寸参照表(摘自《洁净手术室设计规范》)

▲国内手术室一般要进行二次装修(引用筑龙网图片信息)
随着住院患者的增加,各种手术设备引入,上述面积指标已经很难满足手术空间的需求。翻阅美国在行业实践中的相关资料,《医院与门诊设施设计与建造导则》中对各类手术室的面积提出了更加合理的参照标准。

从单个手术室的布置来看,特殊的手术室要能够满足特殊手术的需求,比如杂交手术、ERCP(经内镜逆行性胰胆管造影术)等。但是,当今手术室的趋势更强调普遍性和灵活性,能够应对各种类型的手术。手术室的形状以净宽7m×7m的正方形为宜,依据规范7.3.14,洁净手术室和洁净辅助用房必须设置的插座、开关、各种柜体、观片灯等均应嵌入墙内不得突出墙面(非强制性条例),国内的手术室一般需要进行二次装修,增加400~500mm的包边,为保证墙面整体性常用不锈钢板、铝合金平板和其他复合型材料,做嵌入式的器械柜、观察窗等保证与墙体设计的整体性,以满足洁净需求。

▲结合美国 FGI的手术室标准与 HKS的设计经验,HKS提出的手术室建议标准面积
美国手术室设计一般不做包边处理,他们认为,合理的压力梯度是阻止悬浮菌传播的最基本方法。通过手术病床正上方垂直层流高效过滤器形成正压环境,使气流从洁净度高的区域流向洁净度低的区域,区分房间内洁净等级,足以满足洁净要求。<br />
<img src="images/DB0C25CA-2604E6B9-6A121A11-59842D620.jpg" alt="" /> 比如,在前述的手术室面积区域图中,其他工作人员一般不得进入主刀医生工作区域。与嵌入式安装器械柜等设备不同,美国多采用独立可移动的形式布置在房间外围,因此在相同的柱距下可获得更多的净面积。
◆ ◆ ◆ ◆
手术部门面积测算
◆ ◆ ◆ ◆
手术部门是医技部分的核心部门,所占面积比重最大。手术部门的布局很大程度上影响了其他医技部门的位置,比如手术部门需要与血库有直通的供血电梯,与病理科有便捷的标本运送通道。再比如,手术中心与中央供应有直接的洁梯与污梯连接等。手术部门适合布置在医技的顶层,这样可以直接位于机房下部便于做净化防护与层高的调整。目前,国内手术部门的面积尚无行业标准,有建议手术中心的面积占到医院总业务用房面积的4%左右,可按每间手术室占用150~200 ㎡。美国 2006 年版的《医疗设施空间规划》第二版为手术部门分配到每间手术室的面积提供了建议(参考下图)。

手术部门是一个庞大而复杂的系统,手术室是部门的核心部分,除此之外还有许多其他功能空间,比如医护办公空间、患者麻醉准备空间、术后恢复空间、设备空间、洁污存储空间、污物收集空间等,都是手术室不可或缺的组成部分。建筑师制作手术部门空间清单(任务书)时,要与手术部门的医护人员进行深入交流,他们对各类空间面积的余缺有切身体会,能够给建筑师提供有效的参考建议。另外,通过对现有手术部门的实地调研,建筑师可以对如何有效整合现有空间提出建议,从空间尺度上给手术部门的使用者更直观的指导。

▲参照手术部门(仅住院手术)240~250平方米每间的标准,并对HKS在中美建成或在建的部分项目进行了对比,对比结果建议每间手术室平均占用240平方米手术部门面积是比较合理的设计标准。手术部门面积比重指手术部门站医院业务用房比重(不含地下车库面积)
空间任务书对每类使用空间的每一个房间进行了面积和数量的规定,并对每一个房间的具体功能进行描述,是对手术部门面积详细且完整的总计。值得注意的是空间任务书罗列的都是各个房间的净面积(DNSF),由于手术室科室的房间众多,加上手术室本身的二次装修,墙体和通道将会占用很大一部分空间。在计算手术部门总面积(DGSF)的时候,根据实践经验,一般乘以1.6的部门系数。
◆ ◆ ◆ ◆
手术部门功能分区
◆ ◆ ◆ ◆
由于手术中心是医技部分面积比重最大的部门,因此,手术部门所在楼层的轮廓往往决定了医技的边界范围,并影响着其他医技部门的位置与医技的楼层数。手术中心应与外科重症监护单元临近,并与血库、病理、供应中心等有便捷的联系。手术中心的布局是以手术室为核心展开的。按照《医院洁净手术部建筑设计规范》(2013 版)的描述,从建筑技术如何采用净化空调措施角度考虑,手术中心可分为洁净区与非洁净区,而医疗规划更多从功能使用的角度上将手术部门划分为公共区域(非限制,手术等候区域及接收换床区),手术生活区(半限制区,更衣、换鞋、办公、医生休息等员工区域),手术区域(限制区域,手术室、无菌物品存放等)。

▲HKS 于 2015 年设计的克拉玛依中心医院手术中心平面图。手术等候大厅(亮黄色区域)位于医疗街公共区域靠近住院部(蓝色区域)交通核,方便从住院病房护送患者下来的陪护家属在换床区域前等候。手术生活区(橘黄色区域)位于手术中心的外围紧贴内部医护走廊(灰色区域),保证了医护人员与公共人流的分离。术前准备与术后恢复同样在内部医护走廊设置单独的出入口,方便转运手术患者的同时保护患者的隐私。剩余区域为手术室及无菌物品的存储空间(红色区域)。
在设计过程中 , 公共区有非常大的设计灵活度,建筑师有充分的自由发挥空间。但是对于手术生活区与手术区的比重却较难把握。本文将设计过程中讨论比较多的手术生活区、麻醉后护理单位 PACU、手术室、无菌物品(含设备)存放空间等做对比阐述。

手术生活区、麻醉后护理单位 PACU、手术室、无菌物品(含设备)存放空间对比
手术室是手术中心的核心,按洁净等级划分:百级,适用于关节置换、器官移植、脑外科、心脏外科等无菌手术;千级,适用于胸外科、整形外科、泌尿外科、肝胆胰外科、骨外科手术;万级,适用于普通外科(除去一类切口手术)、妇产科等手术;十万级,适用于肛肠外科及污染类等手术。
手术室布局过程中应做到将不同洁净等级的手术室组团分区布置,洁净等级组别由高到低依次排列,洁净等级高的手术室布置在手术区尽端,尽量避免其他手术室的交叉干扰,方便组织净化系统,使其更加经济合理。
PACU的设计需要同时与手术区主通道和医院内部员工通道有直接联系,方便患者快速转运。PACU的数量与手术复杂程度和手术时间有关,如轮转率高的门诊患者和停留时间长的ICU 患者都将提高PACU需求数量。我国大多数医院PACU仅白天开放,与手术室的开放时间不匹配,夜间术后患者转入ICU观察较多。我国综合医院PACU建议床位数与手术台的比例为1∶1.5~2,或与全天手术之比为1∶4,标准较低。美国PACU标准与手术台数量为1.5~2∶1,由于术前准备的高峰期在早晨,而 PACU的高峰期一般在下午,因此在设计过程中平博pinnacle体育通常将术前准备与术后恢复放在一起不做区分,相互借用以提高使用效率和灵活度。结合术前准备和术后恢复的床位数,平博pinnacle体育尽量将PACU与手术台配比标准提高到1~1.5∶1,并且每张床位平均分配面积(床位所占空间、走道、护士站)约15~20㎡。

一些医院在设计过程中提出,将介入手术室与手术中心合并布置(如克拉玛依中心医院),或内窥镜中心与手术中心麻醉工作区有直接垂直交通联系(如武汉泰康医院)。考虑到医院麻醉师资源短缺,不失为提高麻醉科及PACU人员和设备利用率的好建议。
另一个讨论比较多的问题是手术中心的储藏空间,包括一次性物品储藏、一般库房、无菌库房、设备储藏等的面积配比。“没有一个护士会认为他们有足够的储藏空间”,存储空间不足是平博pinnacle体育在设计过程中经常听到的抱怨。一方面是由于手术用品纷繁复杂,未能根据物品的形态和类别高效地放置,造成了空间的浪费,另一方面是因为存储空间本身设计不合理。根据多个项目的经验和统计,平博pinnacle体育一般将手术中心存储空间做到所有单个手术室面积总和的32%。在布局的时候同时考虑集中布置与分散布置。

▲HKS 于 2015 年设计的克拉玛依中心医院手术中心。集中布置的蓝色存储空间主要沿手术区的主干道布置,方便对 PACU、手术室、麻醉工作室统一调配管理。同时在洁净走道若干个手术室中间穿插布置小的存储空间,方便医护人员及时便捷地存取物品。
◆ ◆ ◆ ◆
手术部门流线分析
◆ ◆ ◆ ◆
手术中心流线复杂,家属、患者、医生、洁污、污物都应有各自的流线,不应互相“打架”。手术区流线秉承的是人物分明、洁污分隔、污染不扩散的原则。规范 7.2.4 已阐明手术室的布局有手术室前单走廊、手术室前后双走廊、纵横多走廊、中心岛、手术室带前室五种组织形式。
手术室前单走廊和带前室一般结合采用,其所遵循的是“污物不扩散”原则,将手术的污染物即时就地打包处理,污染不出手术室。手术室前后双走廊和纵横多走廊所遵循的是“防止交叉感染”的原则,将手术使用后的器材、废弃物,由外走廊送出,其他器材、医生、患者,则全部由内走廊出入。中心岛布局基于手术感染是以“接触感染”为主的观点,优先设置洁净手术器械、敷料,由中央洁净核供应,其他流线放在其次通过外围走廊进出。
国内洁净手术部普遍采用的是洁污双走廊的形式,这种形式最大的特点就是洁污分隔,洁净物品通道和污物收集通道相互交错完全分隔,医务人员、患者和洁净敷料从洁净通道(绿色)进入手术室,术后器材与废弃物从污物通道(红色)送出。洁净通道设置有连接中央供应发放区的洁梯和连接血库的小电梯或窗口。污物通道有连接中央供应收集区的污梯和病理科的小电梯。这种形式洁污明晰,感控上也容易过关,已被大多数医护、工程技术人员接受。

▲HKS 于 2017 年设计的泰康武汉同济医院手术中心洁污流线
在美国,手术室的布局只强调三条流线:一是与切口直接接触的无菌物品是最洁净的,不能与其他任何流线交叉;二是手术污物就地处理,以最短的路线运出;三是医护人员洗手消毒后直接进入手术室。
美国手术中心主要采用中心岛的形式,洁净电梯连接中央供应和无菌核。在洁净核中配备一至两名专门的器械护士,其他医生、护士和患者都从外廊进出手术室。外廊也是准洁净环境,因此手术后物品必须打包处理后由外廊运出。中心岛的布局是基于美国资源丰富、人力成本高的国情产生的,这种布局物流清晰,极大方便了一次性物品的调配,将可重复使用物品的再处理减少到最低程度。随着国内手术一次性器材使用量的增加,且从2013年起,规范相较之前增加了对洁净手术部平面中心岛的描述,在今后医院发展过程中,对这种手术中心模式将会逐渐持开放的态度,因此值得尝试和推广。
日间手术源自于欧美国家,是指患者可以在单日完成手术并离开医院的手术模式。与门诊手术不同,日间手术室属于住院手术,只是从手术到出院一般在24小时内完成,因此需要更系统的术前评估、更优秀的手术团队、更科学的就医流程和更完善的术后回访。在美国,有 80%~90%的手术在日间手术中心完成,在中国,这个比例仅在10%~20%之间。

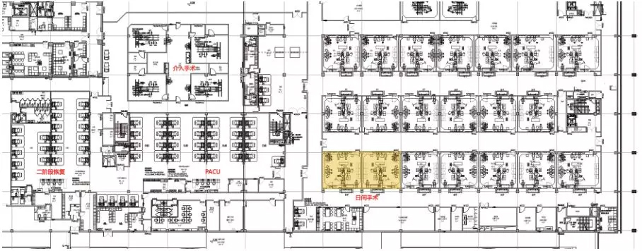
▲HKS 于 2017 年设计的泰康武汉同济医院手术中心。泰康武汉同济医院的日间手区位于手术中心内,但是自成一区,就近设置日间病房,用作日间手术的准备和二阶段恢复。在开展日间手术之前,手术室可作为普通手术室使用,日间手术成熟之后可分离出去成为日间手术区。
日间手术的优点在于经过系统的术前评估,手术成功率高(筛选适合做日间手术的患者);灵活安排时间,方便家人照顾;留院时间短,减少住院费用,加快医院的床位周转。我国住院平均天数8~9天,美国的平均住院天数4~5天,一大原因就是因为日间手术的比例较高。
日间手术有三种模式 :
第一种是与手术中心合用,仅在中心手术区划出若干间手术室作为日间手术区域,日间手术时间由全院统一安排,可设置单独的术前准备和术后恢复区,增设第二阶段恢复或在住院楼的手术层设计日间病房。
第二种是将日间手术作为单独的部门,设置在手术中心以外,仅在日间开放,其他与第一种类型相似。
第三种是设计独立运营的日间手术中心。美国的非住院手术中心多为这种模式,在国内因为医疗保险、医护员工的制度不同,尚未形成这种模式。
美国并不严格区分日间手术和门诊手术,一般称为Ambulatory Surgery Center (ASC)。日间手术室的面积可适当减小,一般在26~27.9平方米为宜。
日间手术的准备和恢复分为三个区域 :术前准备区,与手术室的比例2~3∶1,术后恢复区,与手术室的比例2~3∶1,二阶段恢复区,考虑到不同的使用频率可与术前准备区合用。考虑到术前准备与二阶段恢复都是清醒的患者,为了保护患者的隐私,一般采用单间或者隔间的形式,隔间7.4平方米为宜,单间11.1平方米为宜。
日间手术于2001年进入我国,目前处在逐步发展的阶段,在政策的鼓励下,各类有资质的医院已经进行了设置日间手术中心的尝试。在设计过程中,建筑师也应该对手术中心日间手术区的空间和定位有所考虑。

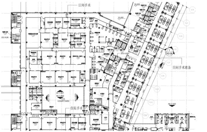
合肥京东方医院日间手术室设置在手术中心区域内,介入手术室与手术中心共享麻醉恢复设施,日间手术室设计了专门的二阶段恢复床位。整个麻醉恢复区域靠近医疗街,方便当日预约的患者前来接受手术。
原文刊发于:《医养环境设计》2018年第12期
原文作者:徐 昉——美国 HKS 建筑事务所建筑师,美国建筑师协会会员,得克萨斯州注册建筑师
原文编辑:侯立萍